[?]

Connectez-vous

Gamme de produits Klima-Rodaclim

OUVRAGE

PRÉSENTATION

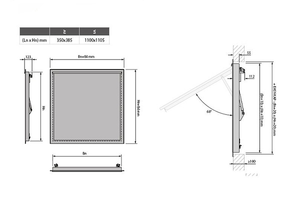
OUVRAGE est un ouvrant d’amenée d’air en façade, à ouverture seule, fermeture manuelle.

Le cadre est réalisé en profil d’aluminium teinte RAL 9006 « aluminium blanc » finition mat.  Panneau de remplissage en XPS (polystyrène extrudé) d’épaisseur 18 mm, maintenu entre 2 feuilles d’aluminium d’épaisseur 1mm. La face extérieure est également de teinte RAL 9006.

De type panneau, il est télécommandé pour une utilisation dans les installations de désenfumage naturel ou mécanique.

CARACTÉRISTIQUES PRINCIPALES

22   Version isolation thermique en standard.
22   Ouverture du panneau : « relevant extérieur » avec les charnières vers le haut.
22   Articulation du panneau réalisée par deux paumelles acier invisibles de l’extérieur.
22   Ouverture par ressort oléopneumatique du panneau et maintien de la position de sécurité.
22   Déclenchement réalisé par une bobine électromagnétique à émission VD ou rupture VM, de tension 24Vcc ou 48Vcc.
22   Le panneau s’ouvre selon un angle de 60° environ.
22   Equipé d’une poignée permettant le réarmement manuel de l’ouvrant.
22   Contact de position début et fin de course unipolaire (FDCU) en standard

TAILLES

22   (Ln x Hn mm)  ≤ 350×385
22    (Ln x Hn mm)  ≤ 1100×1105

FONCTIONNEMENT

L’ouvrant est fermé en position d’attente et s’ouvre sur ordre électrique en cas d’incendie pour permettre l’introduction d’air neuf.

RÉGLEMENTATION

Produit conforme à la norme NF-S-61-937-1 et NF-S-61-937-8.

OPTION (A LA COMMANDE)

22  Contact de position début et fin de course bipolaire (FDCB) en option.

FT : 7014-08-A-OUVRAGE